详细介绍
一、 项目概况
公司主要经营范围包括研究、开发、生产电器设备及相关产品。为提高产品质量,贵司欲拟建一间半消声室用于测试相关产品的声学指标。半消声室的功能除了能够满足产品的常规噪声和振动测试的要求外,还应考虑到进一步噪声研究的需要,如噪声源识别、噪声传播途径分析、噪声模拟测试和声品质分析等。
二、 技术指标
l 消声室设计标准依据ISO3745 (声学,噪声源功率级的测定,消声室和半消声室精密法测定法)
l 国标GB6882–2016;(声学,噪声源声功率级的测定,消声室和半消声室精密法);
l 辅助标准ISO7779, ISO10302和GB4214
l 本底噪声:(取决于土建设计和外部环境,以下为估计值):不高于20dB(A);
l 半消声室土建内部空间尺寸:长×宽×高=6.5m×6.5m×4.7m。
三:设计方案
在本工程的设计上提供两种方案供甲方参考,即:(1)穿孔板做法;(2)吸声尖劈做法。
1、 穿孔板做法
1.1、 主要声学设计指标
|
指标 |
半消声室 |
|
本底噪声允许值 |
≤20dB(A) |
|
空气声标准声压力级隔声量(DW) |
≥55dB |
1.2、 完工内部空间尺寸
采用穿孔板方案施工后半消声室内部空间尺寸为:5500mm×5500mm×3900mm。
1.3、 声学设计说明
为保证空气声和撞击声的隔声效果,获得足够的空气声隔声量,本工程采用浮筑地面和“房中房”设计,地面采用弹性浮筑垫层,四面墙体、顶棚与原墙体、顶棚完全隔离,要求施工确保实验室与原房间之间无任何刚性连接。采用穿孔板方案截止频率高于100Hz,约为125Hz。但做近场测试时,100HZ仍为自由场,满足大多数测试要求。
为了保证测量的准确性与可重复性,要求半消声室具有低的背景噪声水平和强界面吸声特性,半消声室四面墙壁与顶部采用穿孔板,地面铺强反射的玻化砖。相关做法如下图所示:

墙体节点示意图

穿孔板做法吊顶节点示意图

地面做法节点示意图
1.4、 穿孔板相关案例实装图

2、 吸声尖劈做法
2.1、吸声性能
所提供安装的尖劈应满足以下吸声特性:
|
频率(Hz) |
吸声系数 |
|
100 |
0.99 |
|
125 |
0.99 |
|
250 |
0.99 |
|
500 |
0.99 |
|
1000 |
0.99 |
|
2000 |
0.99 |
|
4000 |
0.99 |
|
8000 |
0.99 |
2.2、完工内部空间尺寸
采用尖劈方案施工后半消声室内部空间尺寸为:5000mm×5000mm×3600mm
2.3、消声性能
半消声室能提供频率范围从100Hz到8000Hz的近似自由场环境,其反平方律性能偏差满足以下列国际标准ISO 3745的要求:
测量要求是用单频信号,选在1/3倍频程的中心频率:
|
1/3倍频程(Hz) |
半消声室允许偏差(dB) |
|
≤630 |
±2.5 |
|
800–5000 |
±2.0 |
|
≥6300 |
±3.0 |
2.4、尖劈技术参数
1、外形尺寸
尖劈采用双尖顶结构,尖劈结构总长(从墙壁到尖劈顶面)1000mm,其中底座400mm×400mm,尖劈长度为600mm,后腔尺寸为50mm,确保100Hz以上的法向吸声系数达到0.99。
2、材料
所用材料完全符合消防和环保要求,成品尖劈达到GB8624《建筑材料燃烧性能分级方法》所规定的A级标准。
我公司结合多年的消声室设计和施工经验,开发出新型的吸声尖劈,它的主要特点是美观、吸声系数高、无高频反射、阻燃、环保、性价比高。
2.5、安装技术条件
尖劈安装时,先在距离墙面50mm处预制好安装钢架网格,所有的钢架网格均预先刷2-3遍防锈漆,然后将尖劈用预制专用低频吸收板固定在钢架上。
安装完成后尖劈与空腔的总长共500mm,加上尖劈尖顶延长50mm,可以满足100Hz的截止频率要求。
尖劈样式规格如图所示:

尖劈样式图
尖劈安装实景图
2.6、隔声门及尖劈门
隔声门与吸声门(尖劈门)的设计是消声室声学参数能否实现的关键。
隔声门必须能够达到或接近与混凝土墙体相同的隔声量(不低于45dB)才能够保证消声室室内的测试环境。
本项目采用AD45钢制高隔声量隔声门,可满足隔声量要求。消声室进出采用声闸门单扇平开,安装尺寸按甲方要求设置;声闸内部采用铝塑板包口。
尖劈门采用国际通用的平开式转轴结构,尖劈安装在内侧。门关闭时从消声室内部看,门上尖劈与墙上尖劈平齐;门打开时,尖劈与门框一起打开,门可开到最大,不影响进出。
3、照明、配电通风系统
消声室的照明系统包括:工作照明灯具和开关线路组成。工作照明采用2组,4个灯具,与尖劈形状相吻合用穿孔铝板加工的专用嵌入式灯具。光源采用高效节能组合灯管,亮度高无噪声。此灯具设计也充分考虑消声室的特点,最大的减少灯具的反射的同时又能对发光源有良好的反射。灯具与室内风格协调统一并没有直射光,使室内照明明亮且柔和。可以给操作人员提供良好的工作环境。
照明走线需满足建筑安全标准要求,土建时预埋管线,走地下;施工时在试验室顶面预留照明接线即可。
根据甲方提出要求在室内侧与室外侧之间设置供穿线及连接管的连通管,连通管的尺寸、位置及数量在与需方商定后确定。所有连通管采用弹性软连接处理及密封处理,并设置盲栓,以确保室内外侧噪声与振动的隔离,互不影响。
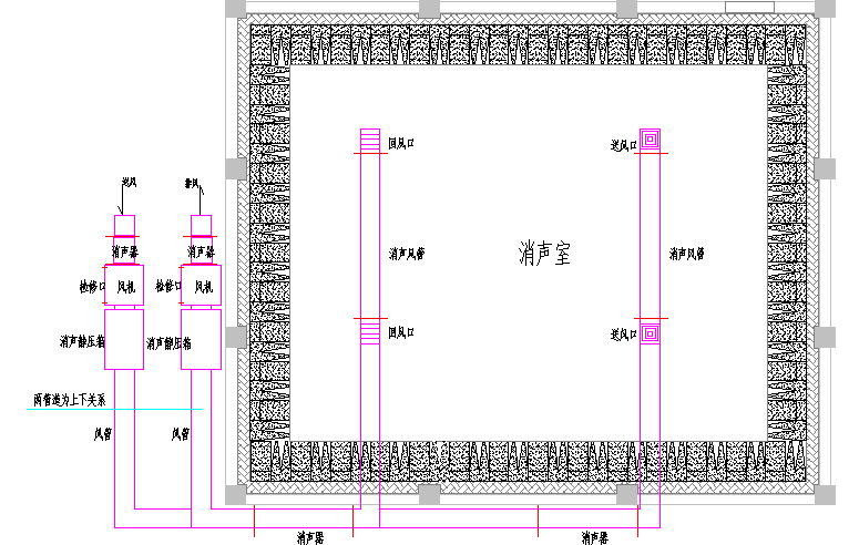
因消声室空间相对密闭且贵司处于南方地区,夏天天气闷热潮湿,为保障消声室空气流通顺畅与空气清新,消声室必然会考虑通风状况,为减少通风所带来的风噪影响,我方决定对通风管道进行消声处理。

通风系统消声处理示意图





京公网安备 11010802031340号