详细介绍
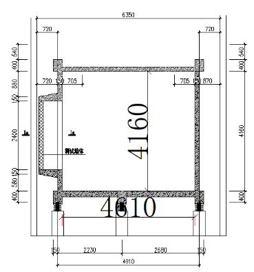
隔声室中接收室采用弹簧浮筑构造的“房中房”形式,房内尺寸为5200×4600×4100mm。地面厚度200mm现浇混凝土,墙面与顶面厚度150mm现浇混凝土。内部地面铺地板砖,墙面使用高光漆,墙面与顶面悬挂吸声体与扩散体,调节接收室的混响时间和声场分布。发声室整体采用现浇构造,容积略大于接收室,门使用背对背开启的双层隔声门。隔声与混响室公用一侧外墙。设计图纸如下所示

平面布局图

接收室剖面图
隔声室主要技术指标可以满足:
接收室本底噪声不高于20dBA;
最大可测隔声量不低于65dB;
接收室容积约100m3,发声室积大于130m3;
室内的声场和混响时间满足 GB/T 19889.1-2005《声学建筑和建筑构件隔声测量》中对隔声室的要求。
完工后验收报告如下





京公网安备 11010802031340号