详细介绍
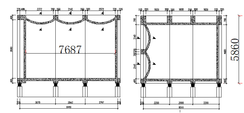
混响室采用弹簧浮筑构造的“房中房”形式,内房外径尺寸为8860×6960×5860mm。地面厚度200mm现浇混凝土,墙面与顶面厚度150mm现浇混凝土。内部地面铺地板砖,墙面使用高光漆或瓷砖。外房南侧和东侧借用先有外墙,窗户做隔声封堵。设计图纸如下所示

平面图


剖面图
混响室主要技术指标可以满足:
本底噪声不高于20dBA;
与室外的隔声量不低于60dB;
容积约214m3;
室内的声场和吸声量满足GB/T 20247-2006/ISO 354:2003 《声学 混响室吸声测量》中对混响室的要求。
验收报告如下






京公网安备 11010802031340号