详细介绍
1. 概述
1.1前言
屏蔽实验室建设目的是防止声波、平面波、微波对实验结果的干扰,充分发挥实验设备的效能。电磁波适用频率300MHz~3 GHz,屏蔽效能35dB ;声频频率100Hz~3150Hz,加权隔声效果不低于40 dB。
本公司长期从事电磁兼容和信息安全防护工程设计及产品研发、生产,具有主持和实施国家、军队重大项目的经历,具备良好的产学研合作基础,具有先进的研发、测试基础设施和相应的技术创新团队,拥有一批能够带动产业发展的高水平研发成果和技术储备。我们力求通过严谨、科学、先进的设计和施工以保证机房的可靠安全运行并根据国家标准及行业标准设计和组织施工。
1.2工程概况
本次项目名称为“隔声屏蔽实验室工程”,主要建设102屏蔽室,为工程范围内的设备提供配电、信号屏蔽处理、室内通风等功能。
工程地点位于中科院物理所办公楼内一层,“隔声屏蔽实验室工程”采用组装式样钢框架支撑,在框架基础上安装隔声层、屏蔽层、吸声层。
为保证使用面积最大化,整体结构厚度不超过160mm。
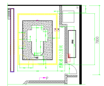
平面结构和轴测图(102室)如图1、2,内部和外部效果见图3,

图1 平面图

图2 轴测图

图3 效果图
102室房间尺寸见下表1。
表1 102房间尺寸
|
房间名称 |
尺寸 |
||
|
长(米) |
宽(米) |
高(米) |
|
|
102室 |
5.75 |
4.50 |
4.5 |
1.3技术设计指标
102室测量方法满足GB/T12190-1999,电磁波适用频率300MHz~3 GHz,屏蔽效能35dB ;声频频率100Hz~3150Hz,加权隔声效果40 dB;配套建设包括屏蔽工程、隔声工程、信号过壁系统。
2.隔声屏蔽室建设方案
2.1主体材料选择
主要材料的选用原则是满足技术要求的情况下,选择高可靠性、工艺成熟、性价比高的材料。
根据隔声技术要求,隔声材料选用隔声模块(构造为2mm镀锌钢板阻尼处理+30方钢填充25mm玻璃棉+0.8mm镀锌钢板),AFC468阻尼隔声板的复合隔声构造。内部吸声材料选用金属穿孔板+50mm空腔填充50mm吸声棉复合吸声构造。
根据该工程屏蔽效能技术要求,屏蔽层主材采用屏蔽布,部分底板用铜板,滤波器部位用钢板建设。
2.2方案施工工艺
2.2.1 屏蔽室结构方案
隔声屏蔽工程墙面设计钢结构立柱及水平拉筋,立柱采用Q235矩形H钢柱,拉筋为Q235方管,经过受力核算满足钢结构建筑设计规范要求,立柱底端先锚接槽钢,槽钢上焊接矩形H钢柱。防锈漆防腐处理,结构外形如图4。

图4 钢结构示意(102室)
2.2.2 隔声体系安装
隔声模块构造:

图5 隔声模块构造图
隔声模块尺寸为1m×2m和1m×2.5m,模块拼接图如下所示:
图6 模块拼接图
如图6所示,模块拼接缝隙用100mm不锈钢封堵。
钢结构框架搭建完成以后,先在矩形H钢柱上焊接45×28角钢,角钢上焊接隔声模块。再在工字钢上焊接30×60方钢,填充50mm玻璃棉,在方钢上固定AFC468阻尼隔声板,工字钢上再固定丝杆,丝杆上固定1mm穿孔铝板,空腔内填充50mm玻璃棉,如图所示

图7 墙体整体剖面做法图
2.2.3 电磁屏蔽体系安装
地面、墙面和顶面都采用粘贴屏蔽布工艺,屏蔽布可以粘贴在水泥建筑面或石膏板刮腻子后的底面上。不在顶面和墙面的交角处做接缝。在三面交角做专门的加固角。屏蔽布干透后刮腻子,找平、磨光、去灰,涂刷防尘漆。
2.2.4 吸声体系安装
吸声层采用拼装吸声铝板,美观、大方。
以上全部安装过程为干作业施工,简单、快捷。

高档装饰效果(折板造型可避免驻波)

内装饰饰面
2.2.5隔声电磁屏蔽门
电磁屏蔽隔声门是该工程的关键设备,是供人员、设备进出的活动部件,也是隔声屏蔽系统中保持总屏蔽效果最薄弱的环节。实验室的屏蔽门采用指型簧片隔声插刀平开门。规格为1360mm×2200mm内双开门一个,(1000+500)mm×2600mm子母门一个,外开式。
|
房间名称 |
开启方式 |
规格尺寸 |
数量 |
|
102室 |
内右(大)开子母门 |
(1000+500)mm×2600mm |
1 |
|
内双开 |
1360mm×2200mm |
1 |
隔声屏蔽门门槛为活动结构,搬运设备收起,保持与建筑地面齐平,平时工作时放下,保持屏蔽和隔声效能,结构如图

图8 门槛
2.2.6通风系统
通风系统平面图如下所示

图9 通风平面图
电磁屏蔽隔声风口采用通风波导窗,当电磁波的频率低于波导窗的截止频率时,电磁波不能穿过波导窗,使屏蔽室既可通风,又不致产生电磁泄漏。通常使用在新风送风口、自然溢出风口、事故排风及泄压口处、缓冲区的对流通风口等部位。
本工程屏蔽室通风波导窗采用真空铜钎焊六角形蜂巢式波导窗。波导窗单个孔径8.0毫米(截止频率为10GHz)。在相同通风截面积时,六角蜂巢式波导管的重量要比方形或圆形的波导窗轻,风阻小。波导窗在3m/s风速下,压降为0.16mmHg。
通风波导窗需要内接消声风管,才能保证实验室整体的隔声效果,隔声风管必须是迷宫结构,在其内侧安装隔声板、反射板,其结构如图9、10所示。安装在屏蔽体正对外来风管的位置,与风管做法兰连接。
图10波导窗 图11消声风管断面图
2.2.7电源滤波器与信号滤波器
电源滤波器是由甲方提供,乙方负责安装、接线。电源滤波器安装及实物图如图12、13所示。

图12滤波器安装图
信号滤波器:信号滤波器串联在进入屏蔽设施的信号线路中,抑制沿信号线传输的高频电磁干扰,同时,对需要通过的电子信号的衰减应尽可能小,确保正常通信不受影响。
隔声屏蔽试验室信号滤波器根据甲方提供的信号线性质设计60dB效能组合滤波转接板。
2.2.8波导管
波导管又称截止波导管,对电磁波而言是一种高通滤波器。波导管具有确定的截止频率,当电磁波的频率低于该截止频率时,电磁波不能穿过波导管,于是波导管起到了屏蔽作用。屏蔽室使用的波导管用于光纤、空调液、气等过壁。
为确保屏蔽室的整体性能,光纤出入屏蔽室时需要通过光纤波导管,每根光纤波导管中可穿过6根尾纤。根据最高截止频率设计光纤波导管的直径与长度,通常波导管长度须大于直径6倍以上。
3.完工图






京公网安备 11010802031340号