• 首页
  • 公司简介
  • 声学测试系统
  • 声学实验室
  • 声学箱
  • 传声器
  • 电声产品附件
  • 合作伙伴
  • 联系我们
全国服务热线:13910248896
北京华清思创声学技术有限公司
  • 首 页Home
  • 公司简介About Us
    • 公司简介
  • 声学测试系统Product
    • 阻抗管测试系统噪声振动测试系统电声测试系统建筑声学测试设备
  • 声学实验室Service
    • 消声室混响室隔声室消声器测试实验室
  • 声学箱Product
    • 消声箱混响箱直播间混响可调箱测听间
  • 传声器Product
    • 测量传声器系列加速度传声器系列
  • 电声产品附件Partner
    • 电声产品附件PM系列数据采集仪测量传声器人工嘴功率放大器传声器电源放大器
  • 合作伙伴Case
    • 典型客户
  • 联系我们Join Us

声学实验室Service

消声室
混响室
隔声室
交科院隔声室 隔声室
更多
消声器测试实验室

您现在的位置:首页-声学实验室-隔声室

产品名称:交科院隔声室
产品型号:
产品简介:

该项目位于北京市顺义区金马开发区交通部科学研究院院内,甲方为研究隔声屏障的隔声与吸声性能,建造一间混响室与一间隔声实验室。

详细介绍

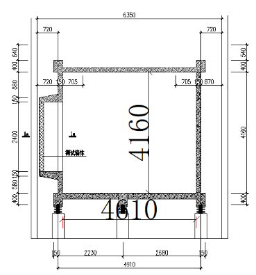
隔声室中接收室采用弹簧浮筑构造的“房中房”形式,房内尺寸为5200×4600×4100mm。地面厚度200mm现浇混凝土,墙面与顶面厚度150mm现浇混凝土。内部地面铺地板砖,墙面使用高光漆,墙面与顶面悬挂吸声体与扩散体,调节接收室的混响时间和声场分布。发声室整体采用现浇构造,容积略大于接收室,门使用背对背开启的双层隔声门。隔声与混响室公用一侧外墙。设计图纸如下所示

平面布局图

接收室剖面图

隔声室主要技术指标可以满足:

接收室本底噪声不高于20dBA;

最大可测隔声量不低于65dB;

接收室容积约100m3,发声室积大于130m3;

室内的声场和混响时间满足 GB/T 19889.1-2005《声学建筑和建筑构件隔声测量》中对隔声室的要求。

完工后验收报告如下

相关产品

交科院隔声室

隔声室
公司简介
公司简介
声学测试系统
阻抗管测试系统
噪声振动测试系统
电声测试系统
建筑声学测试设备
声学实验室
消声室
混响室
隔声室
消声器测试实验室
声学箱
消声箱
混响箱
直播间
混响可调箱
测听间
传声器
测量传声器系列
加速度传声器系列

联系我们

电话:13910248896(微信同号)

邮箱: scaudio@163.com

地址: 北京市海淀区紫竹桥豪柏大厦C1-307室

 

Copyright 2010 © 北京华清思创声学技术有限公司 - 专门从事电声设备研发销售、声学测试设备京ICP备20010268号京公网安备 11010802031340号 |管理后台