• 首页
  • 公司简介
  • 声学测试系统
  • 声学实验室
  • 声学箱
  • 传声器
  • 电声产品附件
  • 合作伙伴
  • 联系我们
全国服务热线:13910248896
北京华清思创声学技术有限公司
  • 首 页Home
  • 公司简介About Us
    • 公司简介
  • 声学测试系统Product
    • 阻抗管测试系统噪声振动测试系统电声测试系统建筑声学测试设备
  • 声学实验室Service
    • 消声室混响室隔声室消声器测试实验室
  • 声学箱Product
    • 消声箱混响箱直播间混响可调箱测听间
  • 传声器Product
    • 测量传声器系列加速度传声器系列
  • 电声产品附件Partner
    • 电声产品附件PM系列数据采集仪测量传声器人工嘴功率放大器传声器电源放大器
  • 合作伙伴Case
    • 典型客户
  • 联系我们Join Us

声学实验室Service

消声室
混响室
交科院混响室 混响室 混响箱
更多
隔声室
消声器测试实验室

您现在的位置:首页-声学实验室-混响室

产品名称:交科院混响室
产品型号:
产品简介:

该项目位于北京市顺义区金马开发区交通部科学研究院院内,甲方为研究隔声屏障的隔声与吸声性能,建造一间混响室与一间隔声实验室。

详细介绍

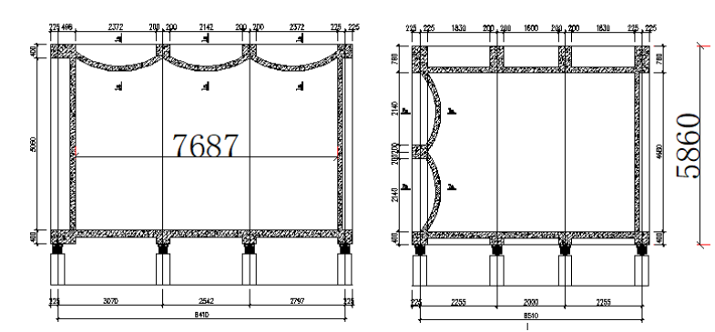
混响室采用弹簧浮筑构造的“房中房”形式,内房外径尺寸为8860×6960×5860mm。地面厚度200mm现浇混凝土,墙面与顶面厚度150mm现浇混凝土。内部地面铺地板砖,墙面使用高光漆或瓷砖。外房南侧和东侧借用先有外墙,窗户做隔声封堵。设计图纸如下所示

平面图

剖面图

混响室主要技术指标可以满足:

本底噪声不高于20dBA;

与室外的隔声量不低于60dB;

容积约214m3;

 

室内的声场和吸声量满足GB/T 20247-2006/ISO 354:2003 《声学 混响室吸声测量》中对混响室的要求。

验收报告如下

相关产品

交科院混响室

混响室

混响箱
公司简介
公司简介
声学测试系统
阻抗管测试系统
噪声振动测试系统
电声测试系统
建筑声学测试设备
声学实验室
消声室
混响室
隔声室
消声器测试实验室
声学箱
消声箱
混响箱
直播间
混响可调箱
测听间
传声器
测量传声器系列
加速度传声器系列

联系我们

电话:13910248896(微信同号)

邮箱: scaudio@163.com

地址: 北京市海淀区紫竹桥豪柏大厦C1-307室

 

Copyright 2010 © 北京华清思创声学技术有限公司 - 专门从事电声设备研发销售、声学测试设备京ICP备20010268号京公网安备 11010802031340号 |管理后台