详细介绍
一、简介
测听室是医用卫生室的一种,进行听力检测时,为达到理想的测听环境,要求在测听室内进行。具有底本底噪声和通风功能。具有静音、环保、舒适、安全、可拆卸组装等诸多优点。
二、设计方案
测听室用于听力测试使用,其主要参数主要包括:隔声量、本底噪声和通风量等。主要技术指标参数如下:
1、内外之间隔声量≥30dB,与其他病房之间≥40dB;
2、顶部进风,进风口有效面积0.05m2,设计风速0.2m/s,每小时换气量为36m3;
3、单人间外部尺寸:1400×1400×2300mm,内部尺寸:1200×1200×2100mm;
若想避免测听室内外及与其他房间之间的噪声干扰,需要测听室有良好的隔声效果,影响测听间隔声的因素有:测听间墙壁本身的隔声、通风空调系统漏声和门的隔声等。墙壁隔声的规律为:
单层匀质实墙的隔声性能与入射声波的频率有关,其频率特性取决于墙本身的单位面积质量、刚度、材料的内阻尼以及墙的边界条件等因素。在主要声频范围内,单层匀质实墙隔声性能主要受质量控制,符合“质量定律”,即墙的单位面积质量越大,隔声效果越好,单位面积质量每增加1倍,隔声量增加6dB。由此可见,要提高墙体隔声量,应尽量用厚重的墙体。从质量定律可知,通过增加墙体的厚度,可以增大其隔声量。但单纯依靠增加墙体厚度来提高隔声量,显然是不经济的;增加墙体厚度增加了结构的重量,也限制了它的使用范围。
多层组合隔墙利用声波穿透不同介质时的反射和衰减吸收来增加隔声量,这种方法可以有效地提高隔声量,并且墙体可以做得很轻。组合墙可以通过中间留空气层提高隔声量。空气间层可以看作是连接墙板的“弹簧”,声波入射到第一层墙板时,使墙板发生振动,此振动通过空气层传至第二层墙板。由于空气间层的弹性变形具有减振作用,因此传递到第二层墙体的振动大为减少,从而提高墙体总的隔声量。双层墙的隔声量可以用单位质量等于双层墙单位质量之和的单层墙的隔声量再加上一个空气间层的附加隔声量来估算。
如果在空气间层内放置吸声材料,但不填满空气间层,可以进一步提高隔声量。通过这些措施,可以很容易使得轻质墙的隔声量达到重墙的水平,具有很好的隔声效果。
我们采用钢板复合构造来提高墙壁的隔声量,外侧钢板采用阻尼处理,减小共振,增强隔声。通风空调系统采用消声处理,保证房间正常换气的同时能减少外界噪声的传入,提高测听间整体的隔声量。门的隔声受门体和密封两方面影响,门体采用与测听间墙壁构造类似,门扇与门框采用企口,企口内装密封条,最大限度的减小漏声的影响。内外隔声量大于30dB,与其他房间之间隔声量大于40dB,避免相互干扰顶部出风,顶部回风,保证新风可进入测听间的各个角落,测听间内换气量不低于36m3/h。测听间内部吸声使用纳米棉(做衣服材料,阻燃处理),根据客户需要调节内饰颜色,保证侧听间内最适宜的混响时间,做到声学舒适性。整体结构使用模块话构造,拼装、拆卸简单,整个组装全程无胶;测听间内环保、舒适、无味。
类似测听间实测隔声量如下:
|
频率/Hz |
100 |
125 |
160 |
200 |
250 |
315 |
400 |
500 |
630 |
800 |
1000 |
1250 |
1600 |
2000 |
2500 |
3150 |
4000 |
DnT,w(C,Ctr) |
|
声压级差 |
19.5 |
18.2 |
19.2 |
23.3 |
33.2 |
33.7 |
37.0 |
36.0 |
35.7 |
38.7 |
42.3 |
42.9 |
41.6 |
40.2 |
40.2 |
42.6 |
40.4 |
38(-2;-6) |

箱体隔声曲线图
考虑到门缝与穿线管的漏声,舱体整体隔声在30dB左右。环境噪声在55dBA时,箱体内的噪声应为25dBA以下。
测听室内部吸声材料吸声系数α=0.7,满足内部语言清晰度的要求。

图2 内部吸声材料吸声系数曲线表
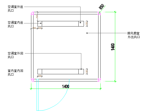
有以上的技术要求,就要求我们在选材时,既要保证舱体的隔声量又不宜选用过于厚重的材料。我们知道,单层均匀介质的隔声复合质量定律,即隔声量与材料的质量成正比,在既要有高隔声量又要限制材料质量的同时我们就要选择轻质复合材料。该舱体选用的是优质钢板为基材的复合结构,内部填充高效吸声材料提高隔声量,周边配钢框架支撑作用。普通单人间测听室如图3所示:

平面图

B侧立面图

顶部风管走向图

通风口剖面图

内饰面图
三、完成后参数
1、嵌入式消声风管,送风口进风导流处理,保证外型整齐美观和通风消声完美结合。内外隔声量大于30dB,与其他房间之间隔声量大于45dB,避免相互干扰;
2、测听间墙壁的构造采用钢板内涂阻尼的处理方式与钢化玻璃结合,既可以保证隔声量又能满足重量要求;
3、顶部送风,保证新风可进入测听间的各个角落,测听间内换气量不低于36m3/h;
4、测听间内部吸声使用聚酯吸音棉(做衣服材料,阻燃处理),保证测听间内最适宜的混响时间,做到声学舒适性;
5、整体结构使用模块话构造,拼装、拆卸简单,整个组装全程无胶;测听间内环保、舒适、无味;
6、底座下方安装隔振垫,减少结构声传播。


京公网安备 11010802031340号