• 首页
  • 公司简介
  • 声学测试系统
  • 声学实验室
  • 声学箱
  • 传声器
  • 电声产品附件
  • 合作伙伴
  • 联系我们
全国服务热线:13910248896
北京华清思创声学技术有限公司
  • 首 页Home
  • 公司简介About Us
    • 公司简介
  • 声学测试系统Product
    • 阻抗管测试系统噪声振动测试系统电声测试系统建筑声学测试设备
  • 声学实验室Service
    • 消声室混响室隔声室消声器测试实验室
  • 声学箱Product
    • 消声箱混响箱直播间混响可调箱测听间
  • 传声器Product
    • 测量传声器系列加速度传声器系列
  • 电声产品附件Partner
    • 电声产品附件PM系列数据采集仪测量传声器人工嘴功率放大器传声器电源放大器
  • 合作伙伴Case
    • 典型客户
  • 联系我们Join Us

声学测试系统Product

阻抗管测试系统
噪声振动测试系统
电声测试系统
建筑声学测试设备
空气声隔声测试 撞击声隔声测试 混响时间及吸声系数测试设备
更多

您现在的位置:首页-声学测试系统-建筑声学测试设备

产品名称:空气声隔声测试
产品型号:SoundTest-V1.0
产品简介:

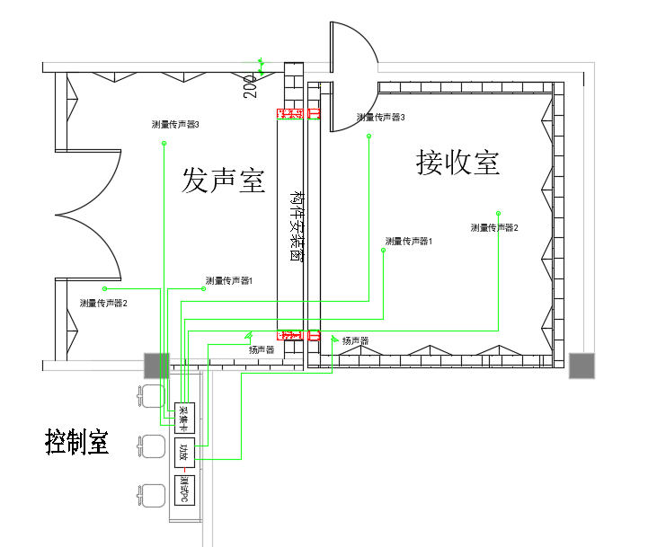
建筑隔声测量系统的原理是利用声学的传播特性来测量隔声材料或构造的隔声能力。系统主要由声源、测量传声器和软件及配套周边设备组成。在建筑隔声测量系统中,声源发出声信号,信号透过建筑材料或墙壁,然后被测量传声器接收。此时控制系统根据实测数据,对建筑隔声进行定量分析,以评估建筑材料的隔声效果。

详细介绍

吸隔声测试系统说明

该套设备需满足隔声室隔声量测量,具体包括:测试软件、测量传声器、校准器、信号调理器、无指向声源、功率放大器、支架和线缆。配置清单如下:

序号

分项名称

单位

1

MNP21传声器

支

2

PM100信号采集器

台

3

DRIAC声学测试分析软件

套

4

功率放大器

台

5

O120无指向声源

台

6

SoundTest噪声测试分析软件

套

7

附件(线缆、面板、接头等)

项

8

支架

个

连接布置如下:

相关产品

空气声隔声测试

撞击声隔声测试

混响时间及吸声系数测试设备
公司简介
公司简介
声学测试系统
阻抗管测试系统
噪声振动测试系统
电声测试系统
建筑声学测试设备
声学实验室
消声室
混响室
隔声室
消声器测试实验室
声学箱
消声箱
混响箱
直播间
混响可调箱
测听间
传声器
测量传声器系列
加速度传声器系列

联系我们

电话:13910248896(微信同号)

邮箱: scaudio@163.com

地址: 北京市海淀区紫竹桥豪柏大厦C1-307室

 

Copyright 2010 © 北京华清思创声学技术有限公司 - 专门从事电声设备研发销售、声学测试设备京ICP备20010268号京公网安备 11010802031340号 |管理后台