详细介绍
高声强发生及接收测试系统
一、简介
该类项目需要研究高噪声对设备的影响。该套设备需满足实验室高噪声测量与控制,设备具体包括:噪声测试软件、测量传声器、校准器、信号调理器、声源、混响箱、功率放大器、支架和线缆等。为了减少对周边环境影响,在混响箱外再做一间隔声间。
二、设计依据
GJB150.17A-2009 军用装备实验室环境试验方法第17部分: 噪声试验
GJB1027A-2020运载器、上面级和航天器试验要求
GJB 1197A-2017 航天器声实验方法
JJF1143 混响箱计量规范
ISO3742 噪声源声功率级的测定—混响箱中测定离散频率和窄带声源的精密法
ISO3743 噪声源声功率级的测定—专用混响箱的工程法
GB6881-2016噪声源声功率级的测定—混响箱精密法和工程法
三、设计指标
1. 可测最大噪声值≥145dB(按148dB设计);
2. 频谱满足GJB150.17A-2009中的规定

3. 箱体容积大于8.0m3;
4. 隔声间外噪声不高于60dBA;
5. 构件与参考构件之间无遮挡物。
四、设计方案
行波管和高噪声箱一般配置4只传声器,箱体较小时可使用两只最大声压级150dB以上的1/4inch的传声器实时监控混响箱内噪声,另外配一只低本底噪声传声器1/2inch,测试130dB以下噪声时使用。
配置一台AL615线阵列低频扬声器
频率响应范围是:35Hz~300Hz
系统类型:1单元直射式倒相超低
额定功率:500W
音乐功率:1000W
峰值功率:2000W
标称阻抗:8 Ω
标称灵敏度(1W@1m):100dB
最大声压级(Pmax@1m):127dB@500W(133dB@2000W)
配置三台HY-215全频扬声器
频率响应范围是:45Hz~18kHz
系统类型:2分频3单元倒相式
额定功率:800W
最大功率:1600W
标称阻抗:4Ω
推荐功率放大器额定输出功率:1000W~1600W@4Ω
标称灵敏度(1W@1m):100dB
最大声压级:129dB@800W (132dB@1600W)
频率带宽(-6dB):45Hz~18kHz
指向性(-6dB):90°H × 60°V
扬声器配置:铁氧体低频扬声器15"(75mm音圈) × 2
铁氧体高频扬声器3"(75mm音圈) × 1
配置两台JZ-2高噪声发声装置
1、高声压级声音输出,前方最大声压级可达141dB(Peak,1m)
2、使用强声驱动器,具有良好的可靠性,语言清晰度高。
3、可通过有线话筒进行现场喊话。
4、具有USB、AUX两种音频信号输入功能。
5、可配接摄像头,对前方区域进行视频画面监视。
6、可配装云台,控制设备旋转角度及方向,准确定位播放音频。
7、升压电源输入,可根据具体使用场合需求配置DC48V,16A或DC24V,35A,满足多种场景需求。
技术指标:
最大声压级:≥141dB
最大输出功率:600W
有效频率范围:400~6kHz
AUX输入接口:信号电压≤1Vrms
USB输入接口:音频文件幅值≤1Vrms
MIC输入接口:动圈式话筒
整机尺寸:654×261×299mm

混响箱设计参数及隔声量计算书
主要技术指标如下:
箱体整体隔声量Rw≥40dB;
内表面平均吸声系数α≤0.06;
本底噪声≤30dBA;
外形尺寸为2600×1620×2370mm(长×宽×高,不含减振),内部尺寸约为2480×1500×2370mm;
室内混响声场测量的标准偏差符合JJF1143规范:
|
1/3倍频带中心频率/Hz |
标准偏差/dB |
|
≥400 |
≤1.5 |
箱体配减振系统为GD橡胶隔振垫两层,固有频率≤14Hz;
两侧面开设光学窗口安装接口,两安装接口的正对中间区域无其他设备阻挡。
混响箱采用金属隔声板组装而成,并在内部设有阻尼减振结构,以增加整体隔声量,减小“吻合谷”。箱体下部安装万象轮及支架,金属隔声板整体厚度为60mm,外表面是2mm 钢板为隔声面,内表面为钢板反射面,内腔填充隔声、阻尼和吸声材料,兼有隔声和反射功能,箱体的表观隔声量不低于40dB。
该构造实验室隔声构造的隔声量测试曲线如下:
|
频率/Hz |
100 |
125 |
160 |
200 |
250 |
315 |
400 |
500 |
630 |
|
隔声量/dB |
26.9 |
28.6 |
33.1 |
36.6 |
42.3 |
46.3 |
47.7 |
50.0 |
51.3 |
|
频率/Hz |
800 |
1000 |
1250 |
1600 |
2000 |
2500 |
3150 |
4000 |
RW(C;Ctr) |
|
隔声量/dB |
51.7 |
51.8 |
52.7 |
54.3 |
54.8 |
55.8 |
56.2 |
57.4 |
52(-3;-7) |

箱体隔声曲线图
混响箱
具体参数:
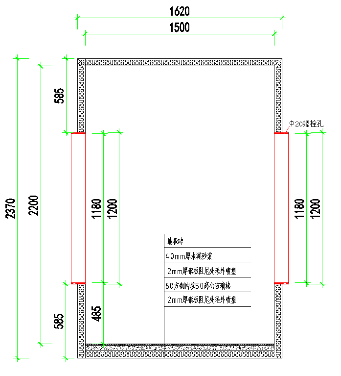
1、 箱体外径尺寸:2600×1620×2370mm(长×宽×高,不含减振和洞口探出部分),内部尺寸约(长×宽×高):2480×1500×2200mm;
2、 箱体灵活出线,使用“几”字形迷宫穿线孔,箱体背面留2个20mm穿线孔(一个直孔,一个“几”字孔);
3、 门尺寸为:2000×900mm,敞开角度>150度;
4、 箱体配减振系统为GD橡胶隔振垫两层,固定在底板上;
5、 箱体为白色,采用喷塑处理;门采用喷漆处理与箱体颜色相同;
6、 主体构造为外面2mm厚钢板,中间用40×60mm方管做出60mm空腔,内塞50mm厚岩棉,里面装3.0mm厚钢板;
7、 箱体做成整体,橡胶垫直接固定在底部。
8、 箱体外侧墙壁做两个安装构件的结构,构件样式如下:

做法如下:
混响箱门左右两侧各安装一个待测构件,位置如图

正视图(红色为待测构件)

后视图(无构件)

平面布置图
B墙与D墙安装构件,安装后B墙面立面图如下

侧视图(混响外视角)
箱内噪声会高达145dB,门隔声量在45dB以上。

横向剖面图

纵向剖面图

电气图(遥控灯)
另外加感应开关保证人在室内不发声,插座均不做暗盒,明装。
混响箱的构造为

根据马大猷《噪声与振动控制工程手册》一书中,关于双层板构造隔声量计算经验公式,
M1=7.8×2=15.6kg/m2,M2=7.8×3=23.4kg/m2。带入公式后求得
R=29.9dB![]()

双层墙附加隔声量与中间空腔的关系(各频率的平均值)
曲线1,双墙间弹性连接;
曲线2,双墙间刚性连接。
R1=6 dB。
中间填充吸声材料室附加的隔声量如下

R2=6 dB。
R=29.9+6+6=41.9dB。
混响箱内噪声在145dB时,箱外噪声Lp=145-41.9=103.1dB。
混响箱外面的隔声间按隔声罩计算,根据马大猷《噪声与振动控制工程手册》书中公式

α2为上述表面的平均吸声系数;
R为罩的隔声量dB;
S1、S2分别为罩内表面积和室内表面积m2。
240mm砖墙的隔声量为55dB,门的隔声量40dB,根据马大猷《噪声与振动控制工程手册》书中公式
组合后隔声量R=52.5dB。
隔声罩的内表面积为80m2,室内总面积按232m2计算,普通房间α2取0.2,带入后求得NR=50.1dB。103.1-50.1=53dB,满足招标文件中隔声间外噪声不高于60dB的要求。
隔声间设计
该混响箱内噪声峰值会达到145dB以上,混响箱隔声量在40dB左右,传到混响箱外也会在100dB左右,人员仍不能在这样噪声环境下办公,为减小实验噪声对周围的影响,计划场地布置在无地下室的一楼。在混响箱布置场地砌一间隔声间,主体构造按下图设计,砌筑到屋顶,外侧做铝塑板装饰,内部墙面用聚酯纤维板做吸声,以增加吸声起到辅助隔声的效果。顶部做隔声吊顶,隔声吊顶下做矿棉板吸声,留两盏平板灯。具体构造如图所示:

隔声间墙面构造图

顶部吸隔声构造节点图
五、过程控制
关键设备实验室检验

出厂前调试

六、检测结果
1、近场最大声压级149.4dB;
2、箱内混响时间


3、45-18kHz各频带最大噪声值均可超过130dB;
4、最大功率工况使用时,隔声间外噪声58dBA;
5、400Hz以上声场均匀性≤1.5dB。




京公网安备 11010802031340号